Seashells Townhouse (3 Bed)



- Flexible Use: Owners can enjoy up to 3 months of personal use per year, with the remaining time managed by Seashells for rental income.
- Investment Potential: Projected rental yields of 4.5%–7% annually, supported by Seashells’ rental database of 70,000+ contacts.
- Design: Fully furnished with high-quality finishes, featuring open-plan living areas, private outdoor spaces, and energy-efficient features.
- Outdoor Living: Includes a welcoming adjustable louvered pergola for seamless indoor-outdoor living, perfect for entertaining or relaxing with family.
- Architectural Detail: Feature 5.3 to 5.4m high raking ceiling in the living/dining/kitchen area, creating a sense of spaciousness and light.
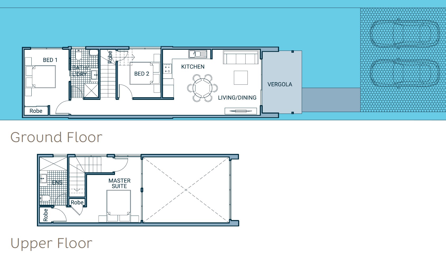
Floorplan

Disclaimer: Floorplan is indicative only